Login Form

551::Stabile con due Appartamenti ampia metratura

Tipologia
Appartamento
Prezzo
119.000 €
Visite
4349
Contratto
Vendita
Superficie
300 m²
Vani
Indirizzo
Via Cavour , Pachino

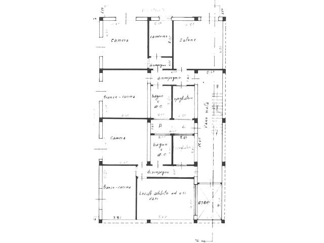
In zona centralissima, proponiamo la vendita di 2 appartamenti di ampia metratura (complessivi 150mq. X 2) all'interno di uno stabile semindipendente di totali 300 MQ. circa. nella centralissima Via Cavour a Pachino (Sr).

Lo stabile esternamente grezzo, si compone di n. 2 appartamenti accessibili mediante scala indipendente (comune ai due appartamenti) che risultano tramezzati, intonacati con impianti luce ed acqua completati.

Da ultimare Bagni, piastrelle, infissi e scala interna. 

N.B. E' POSSIBILE L'ACQUISTO DI UN SOLO APPARTAMENTO CON SPAZI COMUNI ALL'INGRESSO DELLO STABILE.

 

LO STABILE IN OGGETTO SI TROVA IN PROSSIMITA' DI SCUOLE, PANIFICI, TABACCHI, NEGOZI, UFFICI IN GENERE.

IN POCHI MINUTI E' POSSIBILE RAGGIUNGERE I LUOGHI DI VILLEGGIATURA PIU' RINOMATI DELLA SICILIA SUD ORIENTALE.

VICINISSIMA MARZAMEMI:  3KM;

PORTOPALO DI C.P.: 6KM.

 

Classe energetica: Da definire.

 La richiesta della casa in oggetto, scende (da un prezzo iniziale di Euro 139.000,00) a Euro 119.000,00 (-15%) POCO TRATTABILI.

 

 

 

Per Maggiori informazioni chiama il numero: 331/4693674.

Facebook: https://www.facebook.com/certezzacasa/

Grazie per aver visitato il nostro sito.

 

Il presente documento non costituisce elemento contrattuale.

Agenzia Agenzia CertezzaCasa Immobiliare
Indirizzo Via Cavour n. 125, Pachino (Siracusa)
Telefono 3314693674 0931/1967321
Fax 09311967321

Dettagli immobile

Piano 2
Livelli 3
Classe Energetica Non Disponibile

Dettagli Tecnici

Condizioni Struttura Stato Grezzo
 
I cookie rendono più facile per noi fornirti i nostri servizi. Con l'utilizzo dei nostri servizi ci autorizzi a utilizzare i cookie.